34 Raleigh Terrace, CURRUMBIN WATERS
CURRUMBIN RETREAT- COUNTRY LIVING CLOSE TO THE BEACH!
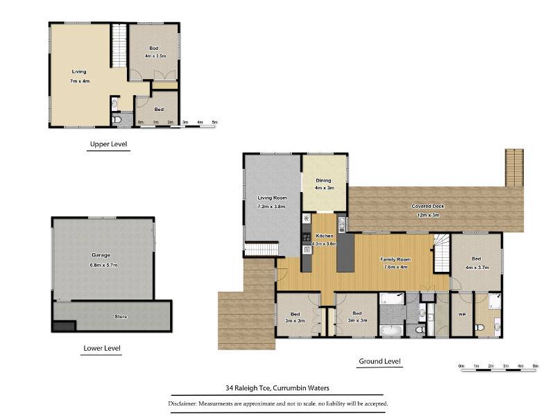
SoldThis delightfully spacious 5 bedroom 2 bathroom home incorporates many features. 3 separate living areas with the family room leading on to a 12m x 3m private covered deck that overlooks a bush reserve with the hills and pastures of Currumbin Valley as a backdrop. Panoramic views for ever!
The well appointed kitchen with oodles of bench space and crafted timber features, opens to a formal dining room. There are 3 bedrooms and 2 bathrooms downstairs and a further 2 bedrooms upstairs, great for kids or guests. Internal stairs lead down to a double lockup garage with plenty of storage. The residence is set on 6177sqm of land and boasts a free form salt water pool complete with beach entry. Very appealing! Plenty of space for a caravan or boat. Easily maintained gardens. Only 5 minutes to main shopping and surf beaches. BONUS – koalas and many species of native birds are frequent visitors to this superb family home.













